24小时咨询电话
13995656518
当前位置 : 首页 >> 实景案例 >> 案例鉴赏>>134平大三房两厅原木风样板房
  • 134平大三房两厅原木风样板房
    134平大三房两厅原木风样板房
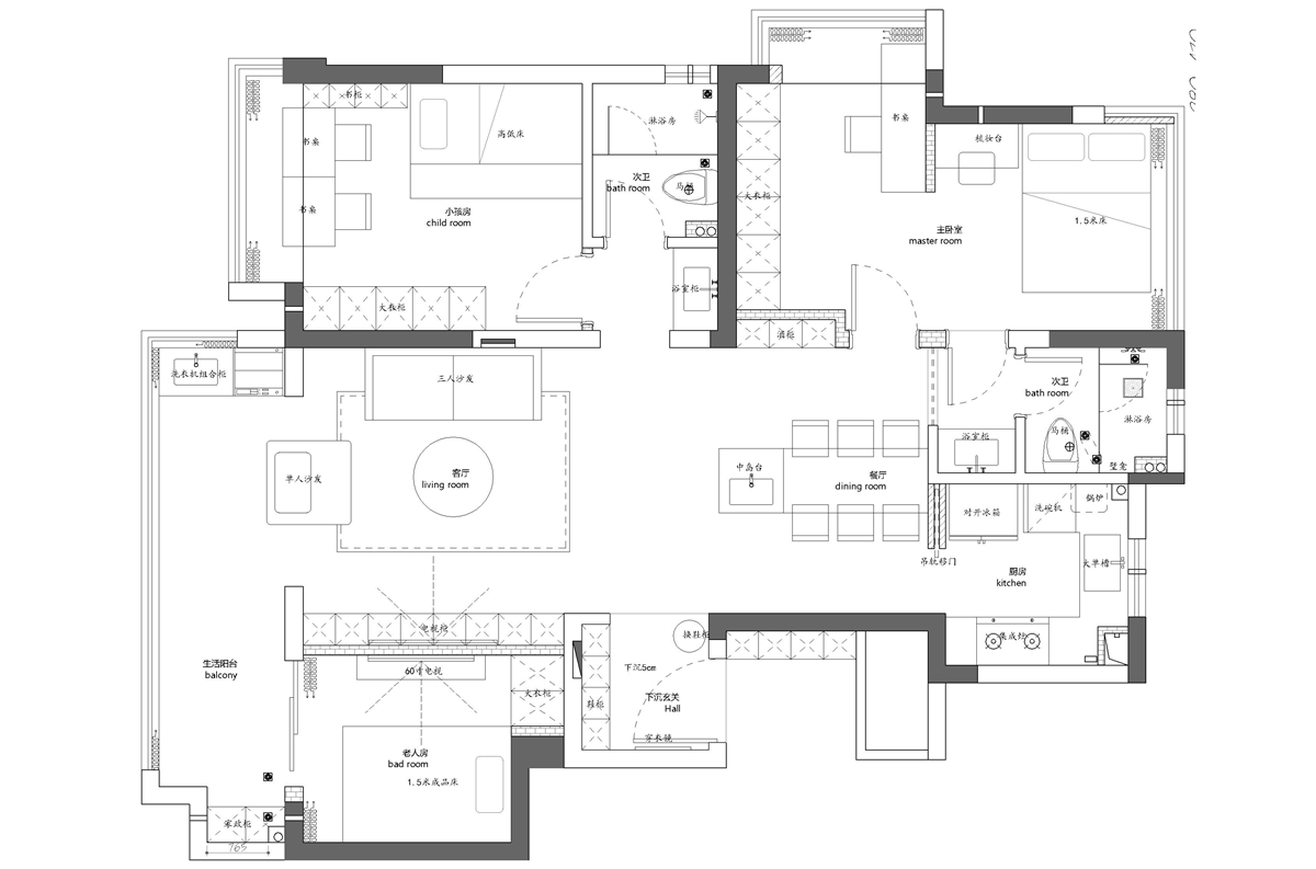
    134平大三房两厅原木风样板房134 | 原木风
    设计理念
    简约实用
    更新时间: 2025-07-12      浏览人数: 484
    风格: 原木风    面积: 134
装修风格测试
获取本案报价
定制同款设计
本案设计师
找TA设计
官中凯 设计总监
擅长风格 新中式,轻奢,日式
个人简介

【毕业院校】湖北美院室内设计专业
【从业经验】20年「曾任职于著名画家陈逸飞所创办的逸飞设计事务所】
【获得奖项】2012年亿房最受欢迎设计师奖
2011年白金设计师称号
2007主流户型设计T0P大赛十大精英设计师
获邀参加08年上海国际设计周
持建筑部颁发高级室内设计师证

更多案例
预约设计师
姓名*
楼盘*
电话*
*为了您的权益, 您的隐私将严格保密
免费获取同款设计方案
姓名*
楼盘*
电话*
*为了您的权益, 您的隐私将严格保密
预约免费获取装修设计方案
姓名*
楼盘*
电话*
*为了您的权益, 您的隐私将严格保密
获取此方案和报价
姓名*
楼盘*
电话*
*为了您的权益, 您的隐私将严格保密
预约成功
您已报名成功, 稍后会有客服人员联系您。 您的隐私将被严格保密。
关注二维码了解更多装修知识

10秒搞定您的专属装修风格

3个问题轻松知道,您最想要的风格

  • 01/ 03

    朋友决定送你一幅画作为新房贺礼,你最想收到的是哪一张?

    1. 风景画

    2. 油画

    3. 水墨画

    4. 水彩画

  • 02/ 03

    选择您最喜欢的动物?

    1. 小猫

    2. 考拉

    3. 海豚

    4. 熊猫

    5. 老虎

    6. 大雁

    7. 兔子

  • 03/ 03

    老板突然通知你,今年公费旅游目的地你来定,你会选择?

    1. 意大利

    2. 日本

    3. 法国

    4. 美国

    5. 东南亚

    6. 哪里都不去

    开始测试
  • 0%
  • 输入手机号码
    获取测试风格及定制三套装修方案

关于我们
嘉年华历程
联系我们
装修咨询电话 : 13995656518
售后服务电话 : 13995656518
公司地址 : 武汉市江岸区竹叶山红星美凯龙商场五楼
关于我们
友情链接 :
    武汉嘉年华装饰设计工程有限公司 页面版权所有 www.whjnh.com

    报名成功享抢订优惠名额

    每日仅限前10名用户

    算一算,您家装修需要花多少钱?

    知精准报价 避装修深坑

    01/03

    选择您喜欢的风格

    • 现代轻奢

    • 现代美式

    • 北欧

    • 新中式

    • 欧式

    • 其他

    算一算,您家装修要花多少钱?

    知精准报价 避装修深坑

    02/03

    选择房屋面积区间

    • 80-100㎡
    • 100-140㎡
    • 140-200㎡
    • 200-300㎡
    • 300㎡以上

    03/03

    您的户型

    • 两居室

    • 三居室

    • 四居室

    • 五居室

    • 六居室

    算一算,您家装修要花多少钱?

    知精准报价 避装修深坑

    0%

    稍等片刻,您的报价正在生中......

    算一算,您家装修要花多少钱?

    知精准报价 避装修深坑

    您的完整报价已经生成